Станина
Конструкция станины - основной фактор, влияющий на способность оборудования производить точные операции в течение многих лет эксплуатации. Станина после сварки подвергается термической обработке для снятия остаточных напряжений и дробеструйной очистке.Передние опоры
В процессе работы гидравлического пресса передняя опорная стойка регулируется на 180 градусов.Система управления E30
Общие характеристики:Задний упор
Стандартный задний упор имеет программируемую ось X, а также ручные оси R, Z1, Z2. Это позволяет настраивать упоры по глубине(Х) и высоте (R), а также перемещать пальцевые блоки влево и вправо (Z1, Z2).Гибочный инструмент
Стандартный набор гибочного инструмента состоит из многоручьевой матрицы на всю рабочую длину и пуансонов, секциями по 500мм а также включает мелкие сегменты для возможности набора необходимой длины и гибки коробчатых изделий.Быстросъемный зажим
Для ускорения процесса смены инструмента имеется возможность комплектования пресса быстросъемным зажимом инструмента стандарта Promecam.
Ножная педаль
Выносная педаль управления с кнопкой аварийной остановки.Компенсации прогиба стола
Система компенсации прогиба обеспечивает компенсацию прогиба по всей длине матрицы. Механическая система состоит из определенного количества (зависит от длины рабочего стола) парных клиньев, каждая пара работает в разных сечениях, имеет свою величину компенсации, отличную от остальных, таким образом, достигаются превосходные результаты гибки.| Усилие гибки, тонн | 125 |
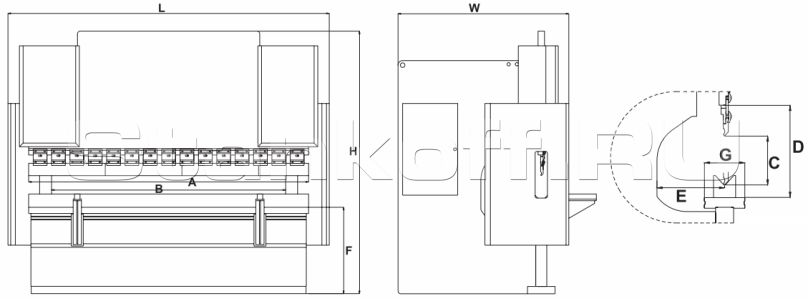
| Длина гибки (А), мм | 2500 |
| Расстояние между стойками (В), мм | 1880 |
| Просвет (D), мм | 380 |
| Ход (С), мм | 120 |
| Вырез в стойках (Зев) (E), мм | 320 |
| Передняя поддержка листа, количество | 2 |
| Пальцевые блоки заднего упора, количество | 3 |
| Мощность, кВт | 7,5 |
| Габаритные размеры (ДхШхВ), мм | 2550х1400х2300 |
Если покупка товаров совершается юридическим лицом, то оплата производится по счету, выставленному менеджером:
Выберите понравившийся товар. Сообщите менеджеру, что хотите приобрести этот товар в лизинг.
Основные условия лизинга оборудования:
Оплата заказа по выставленному менеджером счету. Возможны два варианта:
Оплатить счет можно двумя способами:
Только для физических лиц. При оплате наличными предоставляются кассовый и товарный чеки.
Оплата банковскими картами осуществляется через АО «АЛЬФА-БАНК».
К оплате принимаются карты VISA, MasterCard, МИР.
Отправка заказов в регионы России осуществляется рядом транспортных компаний. Доставка в регионы оплачивается покупателем в соответствии с тарифами компании, осуществляющей перевозку. Доставка оплачивается покупателем при получении груза в транспортной компании. Для оформления доставки потребуются ваши паспортные данные.

Внешний вид товара может отличаться от фотографий на сайте. Несовпадение внешнего вида и комплектности реального товара с фотографиями на сайте не является показателем ненадлежащего качества товара.
Информация о товаре, его технических характеристиках и комплектации приводится в соответствии с общедоступными источниками информации. Технические характеристики и комплектация товара могут быть изменены производителем без предварительного уведомления. Уточняйте важные для Вас параметры у наших менеджеров.